+36 (20) 9 447 413

Hajdúszoboszló Eladó Ház
Csak nálunk! CSOK PLUSZ FIX 3%

Hajdúszoboszló - Eladó Ház

Alapterület
85 m2
Ár
47.990.000 Ft
Hirdetés azonosító
H026

Belvárosi családi ház

Leírás

Hivatkozási szám: H026

‼️ CSAK NÁLUNK! ‼️
Eladó ikerház Hajdúszoboszló szívében!

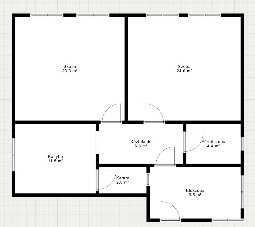
Hajdúszoboszló városközpontjában kínálunk megvételre egy 85 m²-es, jó elosztású családi házat, 250 m²-es telken.

Az ingatlan tágas és praktikus kialakítású, helyiségei:
• konyha–étkező
• kamra
• 2 szoba
• fürdőszoba (zuhanyzóval és WC-vel)

Fűtése konvektoros megoldású.

A ház műanyag nyílászárókkal felszerelt, melyek szúnyoghálóval ellátottak, így biztosítva a kényelmet a mindennapokban.

Irányár: 47,9 millió Ft

A közelben minden fontos intézmény megtalálható: óvoda, iskola, gimnázium, valamint üzletek is könnyen elérhetők.

Amennyiben felkeltette érdeklődését az ingatlan, keressen bennünket bizalommal, és tekintse meg akár még ma!

Ügyfeleink rendelkezésére állunk a hét minden napján, hétvégén előzetes időpont-egyeztetéssel.

További ajánlatainkat megtekintheti weboldalunkon.

Aranysarok Hitel és Ingatlaniroda
???? 4200 Hajdúszoboszló, Arany János utca 44
???? 06 20 944 7413
???? 06 70 637 4517
???? aranysarok44.hu
???? ingatlansarok44@gmail.com

Kapcsolati adatok

Marozsán György E.V. értékesítési tanácsadó

Marozsán György E.V. értékesítési tanácsadó

+36-20-9 447 413

ingatlansarok44@gmail.com

Érdeklődjön az ingatlanról, e-mailben!

Hasonló ingatlanok

Hívás